
Una visión en movimiento: el plano maestro
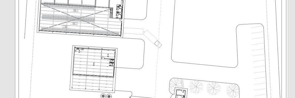
Este plano es la hoja de ruta de nuestro proyecto. El centro logístico en Maldonado En él se puede apreciar la disposición de las futuras naves industriales, los patios de maniobras y la conexión vial estratégica. Cada parcela está diseñada para ofrecer flexibilidad: desde depósitos hasta centros de distribución.
El objetivo es claro: crear un polo logístico de 17 hectáreas donde las empresas encuentren espacio, comodidad y una ubicación inmejorable en el este del país.
MasterPlan_comprimidoUbicación estratégica: el corazón logístico del este.
Esta vista satelital revela por qué elegimos este lugar: acceso inmediato a la Ruta 39, conexión fluida con Maldonado y la costa este, y suficiente espacio para maniobrar vehículos de gran porte. El terreno, hoy en desarrollo, está diseñado para convertirse en un polo logístico de 17 hectáreas, con naves industriales, galpones y áreas de servicio. La ubicación no es casualidad: es la puerta de entrada a una de las zonas de mayor crecimiento del país.
El Centro Logístico Camino De los Ceibos no es solo un lugar: es una oportunidad para impulsar tu empresa logistica en Maldonado. Nuestro compromiso es brindar un centro seguro, accesible y moderno, donde tu negocio pueda operar con eficiencia y proyección a futuro. Estamos escuchando a quienes buscan un punto estratégico para instalarse en el departamento de Maldonado. En el Centro Logístico Camino de los Ceibos, ofrecemos boxes totalmente adaptados a las necesidades de tu empresa. Con un predio de 17 hectáreas y servicios completos, nuestros espacios están diseñados para empresas que necesitan flexibilidad, accesibilidad y una infraestructura moderna para operar eficientemente. Desde depósitos hasta centros de distribución, todos los espacios están conectados por una red de alta calidad, asegurando el crecimiento de tu negocio.
Marca Registrada © Centro Logístico Camino de los Ceibos


